Kezdje itt az ingatlan keresést!

Budapest XV. Kerület, Késmárk utca

Terület400 m²

Szobák száma0

Bérleti díj

2 075 268 Ft


Profil megkötés: nem napi élelmiszer


Kialakítható kisebb egységek: rugalmas


Extrák: légkondicionált helyiség

Kiadó Üzlethelyiség utcai bejárattal

XV. Kerület, Késmárk utca, 400 m²-es, üzlethelyiség utcai bejárattal

KIADÓ UTCAFRONTI ÜZLETHELYISÉGEK – MODERN IRODAHÁZBAN, XV. KERÜLET (KÉSMÁRK UTCA)

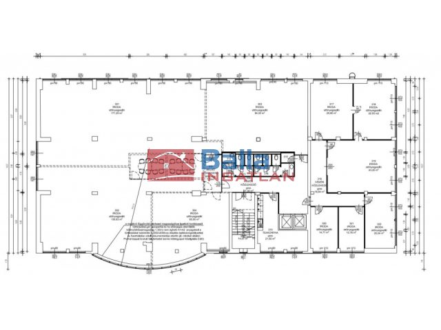
Kiadóvá vált egy 418 m²-es, közvetlen utcafronti üzlethelyiség a XV. kerület ipari-kereskedelmi övezetének frekventált részén, a Késmárk utcában, egy teljes körűen felújítás alatt álló, modern irodaház földszintjén.
A terület szabadon alakítható, így kiválóan alkalmas kereskedelmi, szolgáltató, bemutatótermi vagy ügyfélszolgálati funkcióra.
A legkisebb bérelhető terület kb. 50 m², a teljes földszinti rész pedig igény szerint több egységre osztható.

Főbb jellemzők

418 m²-es földszinti terület

Két irányból megközelíthető bejárat

Igény szerint több kisebb egységre bontható

Rakodásra és teherszállításra alkalmas bejárat

Portaszolgálattal rendelkező épület

Modern megjelenés, kiváló közlekedés

Minimum bérleti idő: 12 hónap

Bérleti feltételek

Bérleti díj: 13 EUR/m² + ÁFA

Kaució: 2 havi bérleti díj + 1 havi bérleti díj előre

Közüzemi elszámolás: fogyasztás alapján

Épületjellemzők

4 szintes irodaház, teljeskörű felújítással

Várható energetikai besorolás: B+

Új hőszivattyús fűtés–hűtés rendszer

Lift és korszerű gépészet

Udvari parkoló bérelhető, utcai parkolás díjmentes

További bérelhető területek

Irodák: 12–600 m² az emeleteken

Raktárhelyiség igény szerint bérelhető a pinceszinten

További információért vagy megtekintés egyeztetéséhez kérem, keressen bizalommal!

Elhelyezkedés: 1158, Budapest, XV. Kerület (Újpalota), Késmárk utca, Késmárk irodaház üzletház

Környezet: Ideális irodai környezet, ipari és kereskedelmi ingatlanok szomszédságában, az újpalotai lakótelep mellet, a XVI. kerület határában!

Közlekedés: Busz: 231, 277.


  • Alapterület 400 m²
  • Hasznos terület 400 m²
  • Szerkezet Acél
  • Állapot Felújított / Újszerű
  • Belsőállapot Felújított / Újszerű
  • Épület szintjeinek száma 5
  • Parkolás Saját parkoló biztosított
  • Üzemeltetési költség 1 800 Ft / m² / hónap
  • Felújítás éve 2025
  • Belmagasság 265 cm

Hasonló ingatlanok

Ingatlan hírek

Ahol találkozhat velünk